
New London Awards
Housing Finalist
WhatHouse? Awards
Best Regeneration Scheme - Bronze
AJ Architecture Awards
Housing Finalist
British Homes Awards
Finalist
Housing Design Awards
Finalist
WhatHouse? Awards
Best Exterior Design Gold Winner
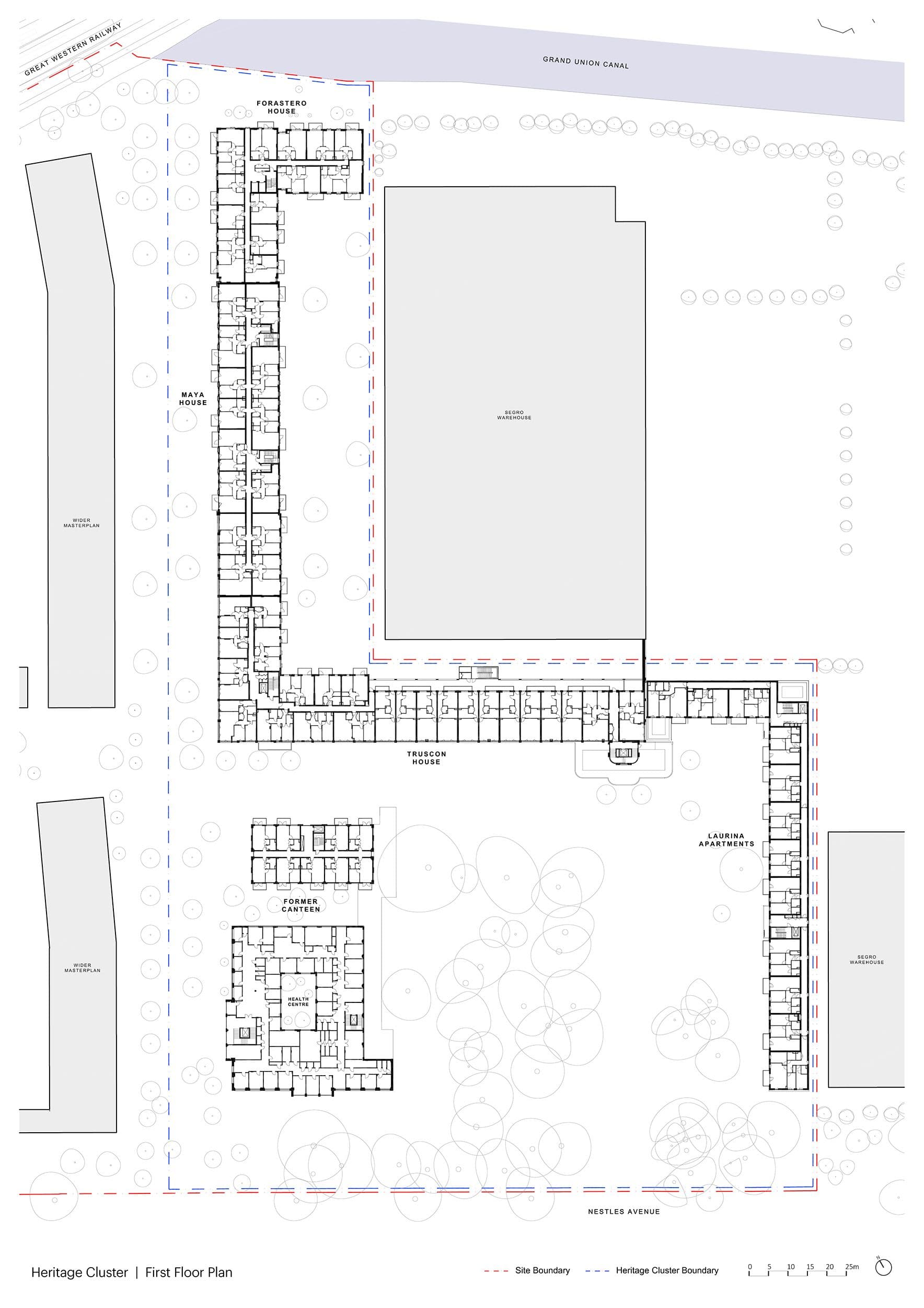
A short stroll from the Elizabeth Line, the 12-hectare Nestlé Factory site has been transformed into a thriving new quarter for the London Borough of Hillingdon. The restored Art Deco Truscon House sits at its heart, anchoring the project’s ‘factory in a garden’ vision, surrounded by new homes, public spaces and canalside routes. Within the heritage cluster, 400 apartments are arranged alongside community facilities, play spaces and green infrastructure.
- Location
- Hayes, London
- Size
- 342,700 sqft, 400 homes, 26,800 sqft of healthcare facilities
- Client
- Barratt London





In 2012, Nestlé announced its intention to close its Hayes factory – an important employer for local people since 1913. Its industrial buildings, mature trees and canalside setting offered enormous potential, especially due to the anticipated arrival of Crossrail, so the 12-hectare site was designated for mixed-use regeneration by GLA.



Barratt London appointed dMFK to lead the ‘heritage cluster’ within the 1,400-home masterplan, a collaboration between Makower Architects, Hawkins Brown, Chapman Taylor and dMFK. The brief was to design and deliver 400 apartments, a healthcare facility and a nursery across six buildings. A key ambition was to create a neighbourhood that works hard for its residents: embedding green space, restoring listed structures and fostering community.
Before and After













Retaining and reimagining Truscon House set the tone for the whole cluster. We carefully restored Wallis Gilbert’s white glazed brick façade and Art Deco entrance tower, then introduced new Crittall-style windows to bring thermal performance in line with modern standards. Laurina and Maya Apartments borrow from the language of the factory – brickwork grids, tiled panels and long, low forms – while eleven-storey Forastero House rises along the canal, connecting the cluster to the wider neighbourhood.


“As a much-loved local landmark, it is incredibly important to us that the conversion of the former Nestlé factory is heritage-led. Historic brownfield sites, such as disused factories, often represent a distinct moment in a community’s history. We hope to celebrate that history, while allowing the building to play a significant role in the community’s future.”
Joe Antoniazzi, Head of Sales at Barratt

Communal Interior Spaces









The final phase will restore the former Canteen Hall as a healthcare and nursery facility, completing the ensemble around Wallis Gardens; a new public park inspired by the site’s industrial heritage. Together with routes linking street to canal and a 5km trim trail of historic artefacts, the scheme enhances connectivity, fosters community and celebrates the site’s story.


Related projects
View selected


