
Guest Street sits at the edge of Ancoats, its robust brick elevations drawing character from the industrial fabric of Stubbs Mill and the wider canalside setting. The terrace subtly steps across the site, creating a rhythmic streetscape of triple-aspect homes, private courtyards and big windows. A rugged palette of varied brick tones evokes the spirit of a painted mews, giving the development a familiar, neighbourly presence within the evolving masterplan.
- Location
- Ancoats, Manchester
- Size
- 14 homes
- Client
- Urban Splash


As the second affordable housing scheme within Will Alsop’s New Islington masterplan, Guest Street presented an opportunity to rehouse long-standing residents of the former Cardroom Estate in high-quality, thoughtfully designed homes. The masterplan’s structure of alternating land and water "fingers" offered a distinctive urban setting, and the ambition was to create homes that were contemporary yet rooted in place. Central to the vision was designing alongside residents, whose insight shaped a brief centred on daylight, comfort and meaningful flexibility.


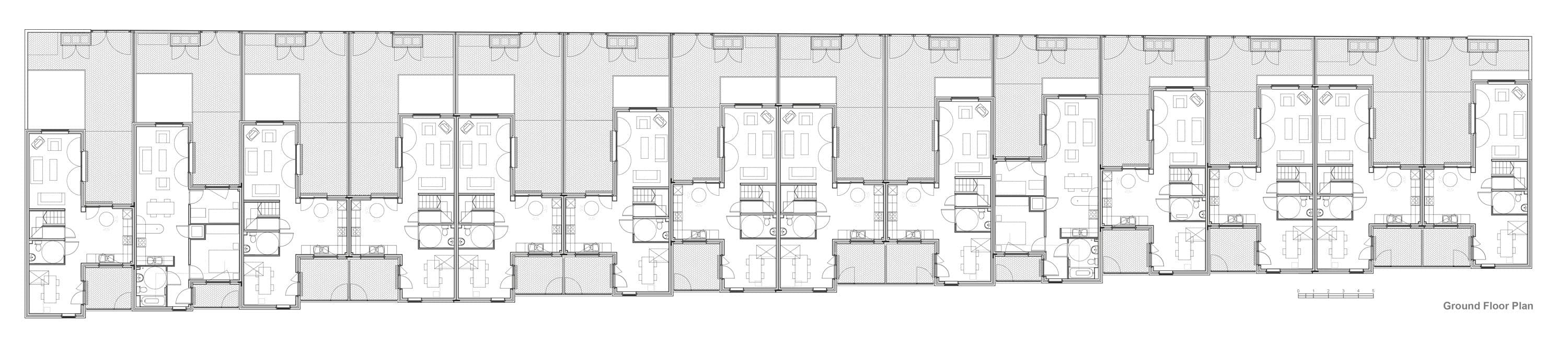
Residents spoke clearly about how they wanted to live: two-storey houses, big windows, generous proportions and, above all, kitchens at the heart of the home. This drove the development of T-shaped floorplans that placed the kitchen as a social anchor, supporting everyday gathering, homework, cooking and conversation. The ambition was to create a humane, adaptable terrace that respected residents’ lived experience while contributing confidently to the architectural character of New Islington.




Architecturally, Guest Street draws from the textured, industrial identity of Ancoats. A mix of rugged brick tones and sharp, expressive detailing gives each home presence while maintaining a cohesive terrace. The stepped arrangement follows the geometry of the plot, creating rhythm and individuality along the street. Triple-aspect layouts maximise natural light and cross-ventilation, while private courtyards provide outdoor space integral to daily life.


Internally, the T-shaped plans enable both open and cellular configurations, allowing households to adapt their homes over time without compromising architectural clarity. Large windows frame views and draw daylight deep into each home, reinforcing a sense of openness. This resident-led approach – listening to what people valued in their previous homes and what they wanted to change – underpins the project’s success. The result is a robust, generous and deeply responsive terrace that feels simultaneously new and familiar.

Related projects
View selected


